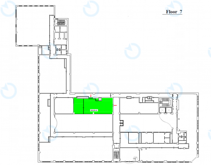
Офіс Оренда офісу 130 м.кв 7 поверх Леонардо (I черга)

Від 35 $ / м²
Статус - Вільний
Комунальні - по факту використання
Характеристики
  • Тип угоди: Оренда
  • Розміщення: Леонардо (I черга)
  • Клас: A
  • Адреса: вул. Богдана Хмельницького, 19-21
  • Район: Шевченківський
  • Метро: Золоті ворота
  • Площа, м2: 130 S
  • поверх: 7
  • планування: open-space + кабінет
  • стан: офісний ремонт
  • кондиціювання: встановлено
Додати в порівняння
З усіма додатковими питаннями звертайтеся за тел.
Business
Centre
Інформація про Бізнес-центр
Натисніть для відображення карти
Оренда
Бізнес-центр
A
Леонардо (I черга)
Загальна площа, м2: 38000
  • Район: Шевченківський
  • адреса: вул. Богдана Хмельницького, 19-21
Від 12 $2