Офіс Оренда офісу 1491 м.кв 1-6 поверх UNIT.City

Від 22 $ / м²
Статус - Зайнятий
Комунальні - по факту використання
Характеристики
  • Тип угоди: Оренда
  • Розміщення: UNIT.City
  • Клас: A
  • Адреса: вул. Дорогожицька, 3
  • Район: Шевченківський
  • Метро: Лук'янівська
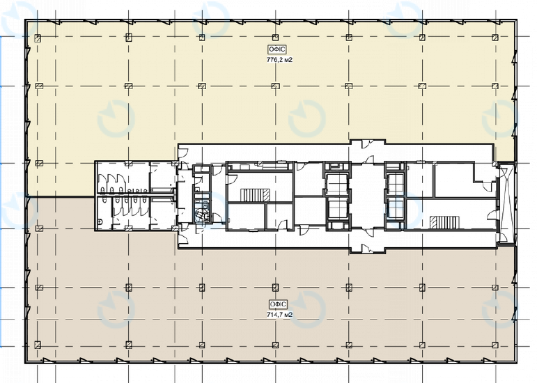
  • Площа, м2: 1491 XXL
  • поверх: 1-6
  • планування: open space
  • стан: shell&core
  • кондиціювання: центральне
  • Додатково: На етапі будівництва
Додати в порівняння
З усіма додатковими питаннями звертайтеся за тел.
Business
Centre
Інформація про Бізнес-центр
Натисніть для відображення карти
Оренда
Бізнес-центр
A
UNIT.City
Загальна площа, м2: 30000
  • Район: Шевченківський
  • адреса: вул. Дорогожицька, 3
Від 18.00 $ 2