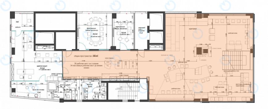
Офіс Оренда офісу 160 м.кв 2 поверх Hub 4.0

Від 1020 грн / м²
Статус - Зайнятий
Комунальні - включені
Характеристики
  • Тип угоди: Оренда
  • Розміщення: Hub 4.0
  • Клас: Коворкінг
  • Адреса: пров. Ярославський, 1/3
  • Район: Подільський
  • Метро: Контрактова площа
  • Площа, м2: 160 M
  • поверх: 2
  • планування: open-space
  • стан: офісний ремонт
  • кондиціювання: центральне
Додати в порівняння
З усіма додатковими питаннями звертайтеся за тел.
Business
Centre
Інформація про Бізнес-центр
Натисніть для відображення карти
Оренда
Помещение
Коворкінг
Hub 4.0
Загальна площа, м2: 1750
  • Район: Подільський
  • адреса: пров. Ярославський, 1/3
Від 17 $2