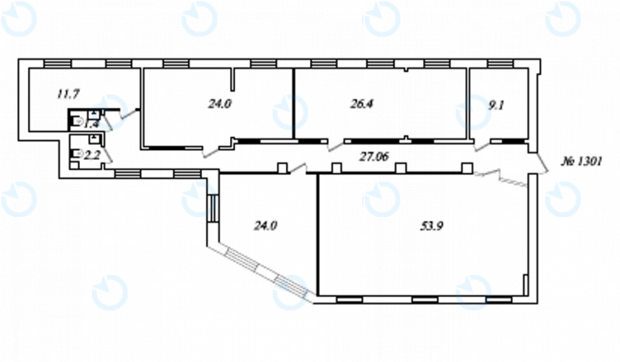
Офіс Оренда офісу 186 м.кв 3 поверх Межигірський

Від 428 грн / м²
Статус - Зайнятий
Комунальні - за лічильниками
Характеристики
  • Тип угоди: Оренда
  • Розміщення: Межигірський
  • Клас: C
  • Адреса: вул. Межигірська, 87А
  • Район: Подільський
  • Метро: Тараса Шевченка
  • Площа, м2: 186 M
  • поверх: 3
  • планування: кабінетна
  • стан: офісний ремонт
  • кондиціювання: спліт-система
Додати в порівняння
З усіма додатковими питаннями звертайтеся за тел.
Business
Centre
Інформація про Бізнес-центр
Натисніть для відображення карти
Оренда
Бізнес-центр
C
Межигірський
Загальна площа, м2: 1000
  • Район: Подільський
  • адреса: вул. Межигірська, 87А
Від 428.00 грн 2