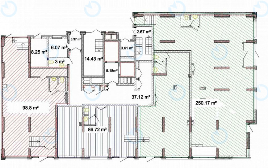
Офіс Оренда офісу 200 м.кв 1 поверх Багговутівська 17-21

Від 20 $ / м²
Статус - Зайнятий
Комунальні - по факту використання
Характеристики
  • Тип угоди: Оренда
  • Розміщення: Багговутівська 17-21
  • Клас: Нежитлове
  • Адреса: вул. Багговутівська 17-21
  • Район: Шевченківський
  • Метро: Лук'янівська
  • Площа, м2: 200 M
  • поверх: 1
  • планування: open space
  • стан: офісний ремонт
  • кондиціювання: спліт-система
Додати в порівняння
З усіма додатковими питаннями звертайтеся за тел.
Business
Centre
Інформація про Бізнес-центр
Натисніть для відображення карти
Оренда
Помещение
Нежитлове
Багговутівська 17-21
Загальна площа, м2: 2200
  • Район: Шевченківський
  • адреса: вул. Багговутівська 17-21
Немає вільних площ