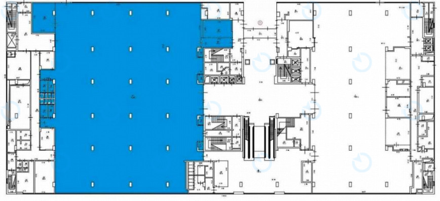
Офіс Оренда офісу 2432 м.кв 1 поверх КВЦ Парковий

Від 22 $ / м²
Статус - Зайнятий
Комунальні - по факту використання
Характеристики
  • Тип угоди: Оренда
  • Розміщення: КВЦ Парковий
  • Клас: A
  • Адреса: Паркова дорога, 16a
  • Район: Печерський
  • Метро: Арсенальна
  • Площа, м2: 2432 XXL
  • поверх: 1
  • планування: open space
  • стан: офісний ремонт
  • кондиціювання: центральне
Додати в порівняння
З усіма додатковими питаннями звертайтеся за тел.
Business
Centre
Інформація про Бізнес-центр
Натисніть для відображення карти
  • Топ
Оренда
Бізнес-центр
A
КВЦ Парковий
Загальна площа, м2: 20520
  • Район: Печерський
  • адреса: Паркова дорога, 16a
Немає вільних площ