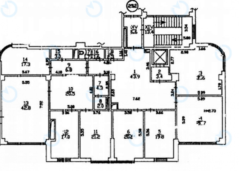
Офіс Оренда офісу 311 м.кв 2 поверх ЖК Тріумф

Від 20 $ / м²
Статус - Вільний
Комунальні - за лічильником
Характеристики
  • Тип угоди: Оренда
  • Розміщення: ЖК Тріумф
  • Клас: Нежитлове
  • Адреса: вул. Звіринецька, 59
  • Район: Печерський
  • Метро: Видубичі
  • Площа, м2: 311 L
  • поверх: 2
  • планування: кабінетна
  • стан: офісний ремонт
  • кондиціювання: спліт-система
Додати в порівняння
З усіма додатковими питаннями звертайтеся за тел.
Business
Centre
Інформація про Бізнес-центр
Натисніть для відображення карти
Оренда
Помещение
Нежитлове
ЖК Тріумф
Загальна площа, м2: 67944
  • Район: Печерський
  • адреса: вул. Звіринецька, 59
Від 20 $2