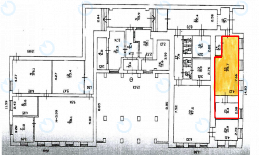
Офіс Оренда офісу 37 м.кв 1 поверх Фролівська 9/11

Від 18 $ / м²
Статус - Зайнятий
Комунальні - по факту використання
Характеристики
  • Тип угоди: Оренда
  • Розміщення: Фролівська 9/11
  • Клас: Нежитлове
  • Адреса: вул. Фролівська, 9/11
  • Район: Подільський
  • Метро: Контрактова площа
  • Площа, м2: 37 XS
  • поверх: 1
  • планування: кабінетне
  • стан: офісний ремонт
  • кондиціювання: спліт-система
Додати в порівняння
З усіма додатковими питаннями звертайтеся за тел.
Business
Centre
Інформація про Бізнес-центр
Натисніть для відображення карти
Продаж і оренда
Помещение
Нежитлове
Фролівська 9/11
Загальна площа, м2: 10100
  • Район: Подільський
  • адреса: вул. Фролівська, 9/11
Від 18 $2