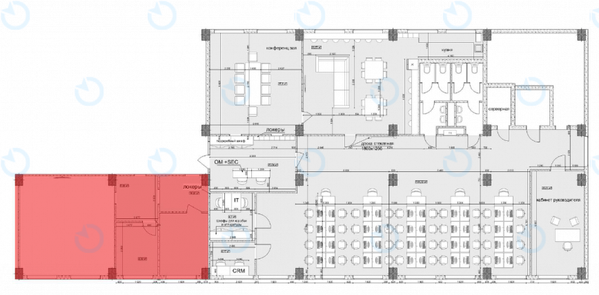
Офіс Оренда офісу 395 м.кв 2 поверх Лейпцизька 15 (I черга)

Від 15 $ / м²
Статус - Зайнятий
Комунальні - по факту використання
Характеристики
  • Тип угоди: Оренда
  • Розміщення: Лейпцизька 15 (I черга)
  • Клас: B
  • Адреса: вул.Лейпцизька, 15
  • Район: Печерський
  • Метро: Печерська
  • Площа, м2: 395 L
  • поверх: 2
  • планування: змішана
  • стан: офісний ремонт
  • кондиціювання: центральне
Додати в порівняння
З усіма додатковими питаннями звертайтеся за тел.
Business
Centre
Інформація про Бізнес-центр
Натисніть для відображення карти
  • Топ
Оренда
Бізнес-центр
B
Лейпцизька 15 (I черга)
Загальна площа, м2: 5640
  • Район: Печерський
  • адреса: вул.Лейпцизька, 15
Від 10.00 $ 2