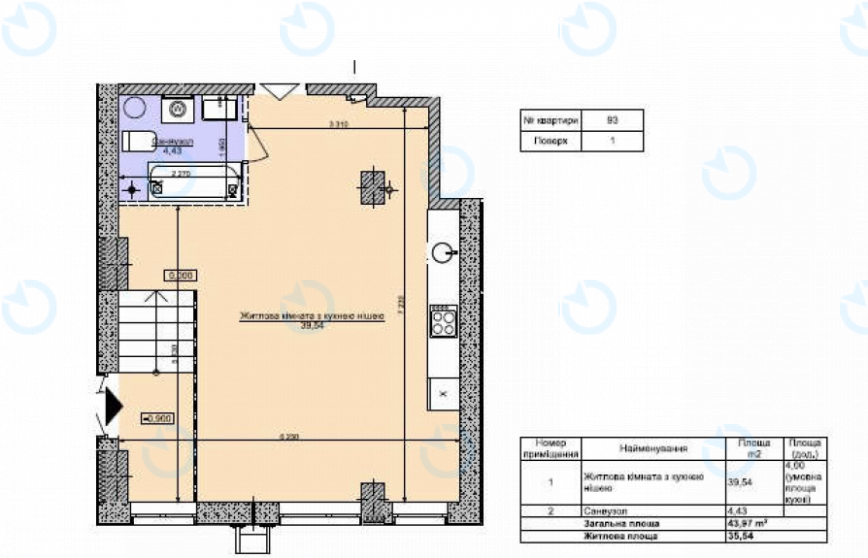
Офіс Продаж офісу 44 м.кв 1 поверх Комфорт Таун

Від 2160 $ / м²
Статус - Вільний
Характеристики
  • Тип угоди: Продаж
  • Розміщення: Комфорт Таун
  • Клас: B
  • Адреса: вул. Регенераторна, 4
  • Район: Дніпровський
  • Метро: Чернігівська
  • Площа, м2: 44 XS
  • поверх: 1
  • планування: open-space
  • стан: shell&core
  • Додатково: Перший поверх
Додати в порівняння
З усіма додатковими питаннями звертайтеся за тел.
Business
Centre
Інформація про Бізнес-центр
Натисніть для відображення карти
Продаж
Бізнес-центр
B
Комфорт Таун
Загальна площа, м2: 300
  • Район: Дніпровський
  • адреса: вул. Регенераторна, 4
Від 2160.00 $ 2