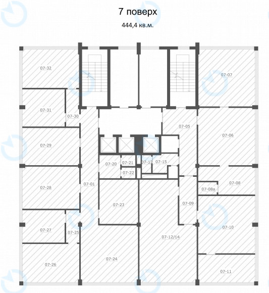
Офіс Оренда офісу 444 м.кв 7 поверх ТОРУС

Від 11 $ / м²
Статус - Зайнятий
Комунальні - по факту використання
Характеристики
  • Тип угоди: Оренда
  • Розміщення: ТОРУС
  • Клас: B
  • Адреса: вул. Глибочицька, 17Д
  • Район: Шевченківський
  • Метро: Лук'янівська
  • Площа, м2: 444 L
  • поверх: 7
  • планування: кабінетне
  • стан: shell&core
  • кондиціювання: спліт-системи
  • Додатково: Свій с/вузол; Своя кухня; Без ремонту
Додати в порівняння
З усіма додатковими питаннями звертайтеся за тел.
Business
Centre
Інформація про Бізнес-центр
Натисніть для відображення карти
Оренда
Бізнес-центр
B
ТОРУС
Загальна площа, м2: 6183
  • Район: Шевченківський
  • адреса: вул. Глибочицька, 17Д
Від 10 $2