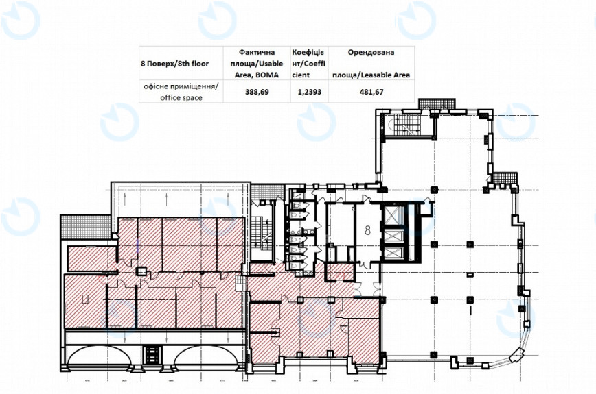
Офіс Оренда офісу 450 м.кв 8 поверх Прайм (Prime)

Від 18 $ / м²
Статус - Зайнятий
Комунальні -
Характеристики
  • Тип угоди: Оренда
  • Розміщення: Прайм (Prime)
  • Клас: B+
  • Адреса: вул, Жилянська, 48
  • Район: Голосіївський
  • Метро: Олімпійська
  • Площа, м2: 450 L
  • поверх: 8
  • планування: кабінетне
  • стан: офісний ремонт
  • кондиціювання: центральне
  • Додатково: Своя кухня
Додати в порівняння
З усіма додатковими питаннями звертайтеся за тел.
Business
Centre
Інформація про Бізнес-центр
Натисніть для відображення карти
Оренда
Бізнес-центр
B+
Прайм (Prime)
Загальна площа, м2: 9139
  • Район: Голосіївський
  • адреса: вул, Жилянська, 48
Від 18.00 $ 2