Офіс Оренда офісу 51 м.кв 1 поверх Урлівська, 5

Від 863 грн / м²
Статус - Зайнятий
Комунальні - сплачуються окремо
Характеристики
  • Тип угоди: Оренда
  • Розміщення: Урлівська, 5
  • Клас: Нежитлове
  • Адреса: вул. Урлівська, 5
  • Район: Дарницький
  • Метро: Позняки
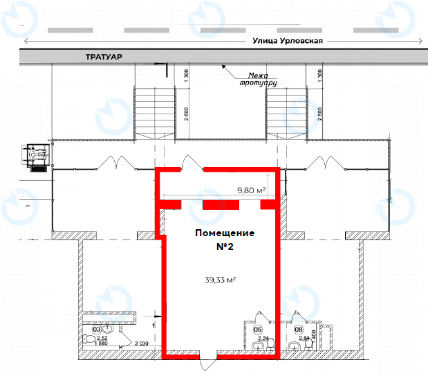
  • Площа, м2: 51 S
  • поверх: 1
  • планування: open space
  • стан: shell&core
  • кондиціювання: встановлено
  • Додатково: Окремий вхід; Перший поверх; Без ремонту
Додати в порівняння
З усіма додатковими питаннями звертайтеся за тел.
Business
Centre
Інформація про Бізнес-центр
Натисніть для відображення карти
Продаж і оренда
Помещение
Нежитлове
Урлівська, 5
Загальна площа, м2: 126
  • Район: Дарницький
  • адреса: вул. Урлівська, 5
Немає вільних площ