Офіс Оренда офісу 53 м.кв 3 поверх Campus

Від 1698 грн / м²
Статус - Зайнятий
Комунальні - по факту використання
Характеристики
  • Тип угоди: Оренда
  • Розміщення: Campus
  • Клас: Нежитлове
  • Адреса: вул. Нижньоключова, 14
  • Район: Солом'янський
  • Метро: Політехнічний інститут
  • Площа, м2: 53 S
  • поверх: 3
  • планування: open space
  • стан: офісний ремонт
  • кондиціювання: центральне
  • Додатково: З меблями
Опис

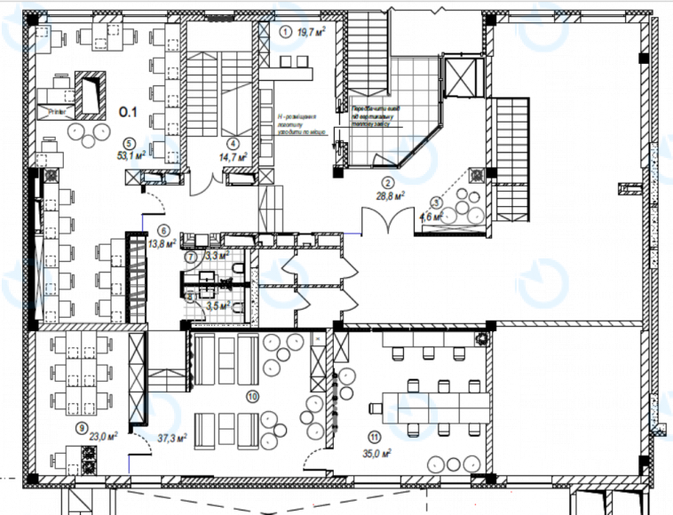
Smart Office 1 на 18 робочих місць, площею 53,1 кв.м, вартість - 90 000 грн / місяць.
У вартість оренди включено:
- доступ 24/7;
- оргтехніка (сканер, копіювальний апарат);
- вода, кава, чай, кухня;
- душ, спортзона;
- зона відпочинку;
- цілодобове відеоспостереження, охорона;
- cleaning;
- комунальні платежі;
- переговорні кімнати (від 2 до 12 осіб);
- технічне обслуговування

Додати в порівняння
З усіма додатковими питаннями звертайтеся за тел.
Business
Centre
Інформація про Бізнес-центр
Натисніть для відображення карти
  • Топ
Оренда
Помещение
Нежитлове
Campus
Загальна площа, м2: 1200
  • Район: Солом'янський
  • адреса: вул. Нижньоключова, 14
Немає вільних площ