Офіс Оренда офісу 57 м.кв 2 поверх Ост Вест Експрес

Від 240 грн / м²
Статус - Зайнятий
Комунальні - по факту використання
Характеристики
  • Тип угоди: Оренда
  • Розміщення: Ост Вест Експрес
  • Клас: C
  • Адреса: вул. В. Хвойки, 18/14
  • Район: Оболонський
  • Метро: Почайна
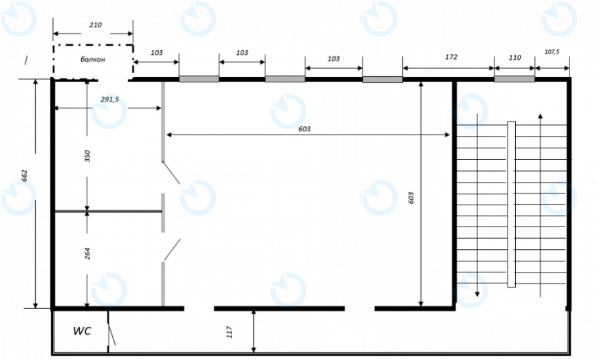
  • Площа, м2: 57 S
  • поверх: 2
  • планування: змішане
  • стан: офісний ремонт
  • кондиціювання: спліт-система
Додати в порівняння
З усіма додатковими питаннями звертайтеся за тел.
Business
Centre
Інформація про Бізнес-центр
Натисніть для відображення карти
Оренда
Бізнес-центр
C
Ост Вест Експрес
Загальна площа, м2: 10000
  • Район: Оболонський
  • адреса: вул. В. Хвойки, 18/14
Від 4 $2