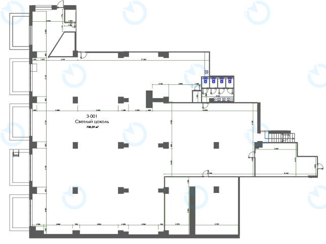
Офіс Оренда офісу 710 м.кв 0 поверх VICTORIA PARK (Вікторія Парк)

Від 7 $ / м²
Статус - Зайнятий
Комунальні - за лічильниками
Характеристики
  • Тип угоди: Оренда
  • Розміщення: VICTORIA PARK (Вікторія Парк)
  • Клас: B
  • Адреса: пров. Охтирський, 7
  • Район: Голосіївський
  • Метро: Васильківська
  • Площа, м2: 710 XL
  • поверх: 0
  • планування: змішана
  • стан: офісний ремонт
  • кондиціювання: спліт-система
Додати в порівняння
З усіма додатковими питаннями звертайтеся за тел.
Business
Centre
Інформація про Бізнес-центр
Натисніть для відображення карти
Оренда
Бізнес-центр
B
VICTORIA PARK (Вікторія Парк)
Загальна площа, м2: 23000
  • Район: Голосіївський
  • адреса: пров. Охтирський, 7
Від 7.00 $ 2