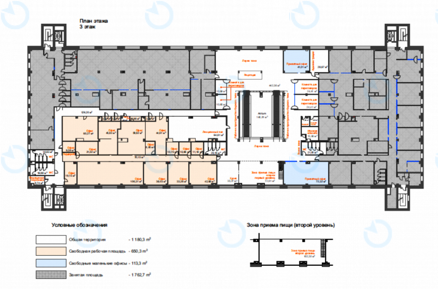
Офіс Оренда офісу 72 м.кв 3 поверх Platforma Office Club

Від 25 $ / м²
Статус - Зайнятий
Комунальні - по факту використання
Характеристики
  • Тип угоди: Оренда
  • Розміщення: Platforma Office Club
  • Клас: Окрема будівля
  • Адреса: вул. Біломорська, 1
  • Район: Деснянський
  • Метро: Лісова
  • Площа, м2: 72 S
  • поверх: 3
  • планування: open space
  • стан: офісний ремонт
  • кондиціювання: центральне
Додати в порівняння
З усіма додатковими питаннями звертайтеся за тел.
Business
Centre
Інформація про Бізнес-центр
Натисніть для відображення карти
Оренда
Помещение
Окрема будівля
Platforma Office Club
Загальна площа, м2: 3700
  • Район: Деснянський
  • адреса: вул. Біломорська, 1
Від 25.00 $ 2