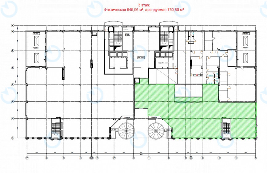
Офіс Оренда офісу 750 м.кв 3 поверх Євразія

Від 18 $ / м²
Статус - Зайнятий
Комунальні - окремо
Характеристики
  • Тип угоди: Оренда
  • Розміщення: Євразія
  • Клас: A
  • Адреса: вул. Жилянська, 75
  • Район: Голосіївський
  • Метро: Вокзальна
  • Площа, м2: 750 XL
  • поверх: 3
  • планування: змішане
  • стан: офісний ремонт
  • кондиціювання: центральне
Додати в порівняння
З усіма додатковими питаннями звертайтеся за тел.
Business
Centre
Інформація про Бізнес-центр
Натисніть для відображення карти
Оренда
Бізнес-центр
A
Євразія
Загальна площа, м2: 33422
  • Район: Голосіївський
  • адреса: вул. Жилянська, 75
Від 18.00 $ 2