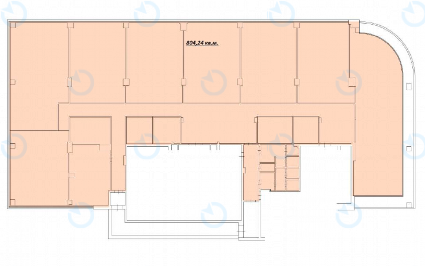
Офіс Оренда офісу 804 м.кв 14 поверх Horizon Park-2
            Від
        
        18
        $
         / м²
    
                        
                            Статус - 
                            
                                Зайнятий
                            
                        
                    
                                       Комунальні - 
                                       сплачуються окремо
                                   
                               Характеристики
                        - Тип угоди: Оренда
- Розміщення: Horizon Park-2
- Клас: B+
- Адреса: вул. Миколи Амосова, 12
- Район: Солом'янський
- Метро: Палац Україна
- Площа, м2: 804 XL
- поверх: 14
- планування: змішана
- стан: офісний ремонт
- кондиціювання: центральне
- Додатково: Своя кухня
                            Поділитися:
                            
                        
                    Інформація про Бізнес-центр
        Натисніть для відображення карти
                
            
            
            
                Horizon Park-2
            
            
    
                Загальна площа, м2: 43547
            
            - Район: Солом'янський
- адреса: вул. Миколи Амосова, 12
            Від
                    
                18.00
                
                    $
                
                /м2
            
            
            
        Схожі офіси
         
                     
                        
                     
                        
                     
                        
                     
                        
                     
                        
                     
                        
                     
                        
                     
                        
                     
                        
                     
                        
                     
                        
                     
                        
                     
                        
                     
                        
                     
                        
                    