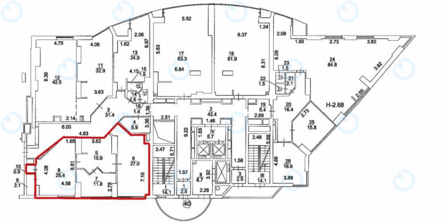
Офіс Оренда офісу 81 м.кв 8 поверх Європа Плаза
            Від
        
        24
        $
         / м²
    
                        
                            Статус - 
                            
                                Зайнятий
                            
                        
                    
                                       Комунальні - 
                                       по факту використання
                                   
                               Характеристики
                        - Тип угоди: Оренда
 - Розміщення: Європа Плаза
 - Клас: B
 - Адреса: бул. Тараса Шевченка, 33
 - Район: Шевченківський
 - Метро: Університет
 - Площа, м2: 81 S
 - поверх: 8
 - планування: кабінетне
 - стан: офісний ремонт
 - кондиціювання: центральне
 
                            Поділитися:
                            
                        
                    Інформація про Бізнес-центр
        Натисніть для відображення карти
                - Популярний
 - Топ
 
            
            
            
                Європа Плаза
            
            
    
                Загальна площа, м2: 14434
            
            - Район: Шевченківський
 - адреса: бул. Тараса Шевченка, 33
 
            Від
                    
                10.00
                
                    $
                
                /м2
            
            
            
        Схожі офіси