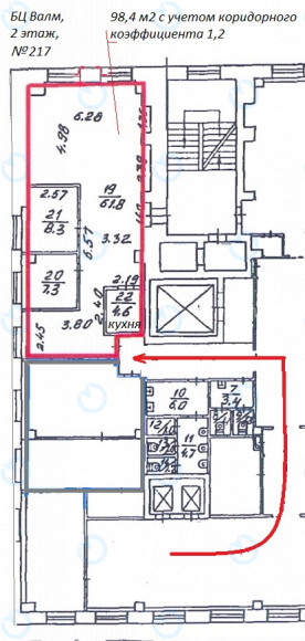
Офіс Оренда офісу 82 м.кв 2 поверх Валмі

Від 14 $ / м²
Статус - Зайнятий
Комунальні - по факту використання
Характеристики
  • Тип угоди: Оренда
  • Розміщення: Валмі
  • Клас: B
  • Адреса: вул. Новокостянтинівська, 13/10
  • Район: Подільський
  • Метро: Почайна
  • Площа, м2: 82 S
  • поверх: 2
  • планування: 3 кабінети
  • стан: офісний ремонт
  • кондиціювання: центральне
Додати в порівняння
З усіма додатковими питаннями звертайтеся за тел.
Business
Centre
Інформація про Бізнес-центр
Натисніть для відображення карти
Оренда
Бізнес-центр
B
Валмі
Загальна площа, м2: 6600
  • Район: Подільський
  • адреса: вул. Новокостянтинівська, 13/10
Від 8 $2