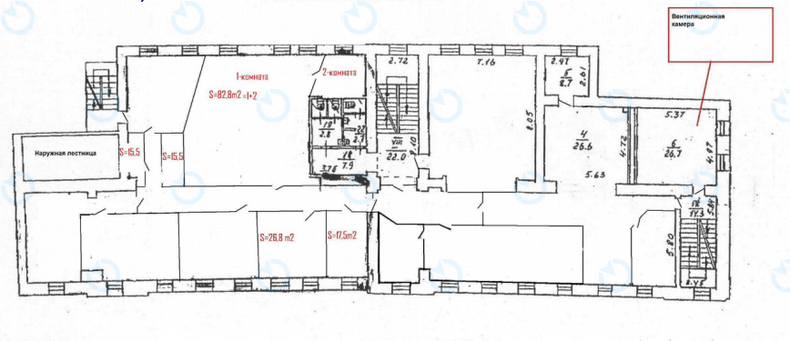
Офіс Оренда офісу 82 м.кв 3 поверх Жилянська, 146

Від 3 $ / м²
Статус - Зайнятий
Комунальні - сплачуються окремо
Характеристики
  • Тип угоди: Оренда
  • Розміщення: Жилянська, 146
  • Клас: C
  • Адреса: вул. Жилянська, 146
  • Район: Шевченківський
  • Метро: Вокзальна
  • Площа, м2: 82 S
  • поверх: 3
  • планування: open-space
  • стан: офісний ремонт
  • кондиціювання: центральне
Додати в порівняння
З усіма додатковими питаннями звертайтеся за тел.
Business
Centre
Інформація про Бізнес-центр
Натисніть для відображення карти
Оренда
Бізнес-центр
C
Жилянська, 146
Загальна площа, м2: 3000
  • Район: Шевченківський
  • адреса: вул. Жилянська, 146
Від 2.50 $ 2