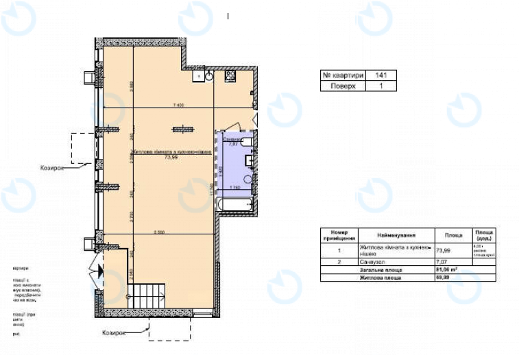
Офіс Продаж офісу 98 м.кв 1 поверх Комфорт Таун
            Від
        
        2160
        $
         / м²
    
                        
                            Статус - 
                            
                                Вільний
                            
                        
                    Характеристики
                        - Тип угоди: Продаж
- Розміщення: Комфорт Таун
- Клас: B
- Адреса: вул. Регенераторна, 4
- Район: Дніпровський
- Метро: Чернігівська
- Площа, м2: 98 S
- поверх: 1
- планування: open-space
- стан: shell&core
- Додатково: Перший поверх
                            Поділитися:
                            
                        
                    Інформація про Бізнес-центр
        Натисніть для відображення карти
                
            
            
            
                Комфорт Таун
            
            
    
                Загальна площа, м2: 300
            
            - Район: Дніпровський
- адреса: вул. Регенераторна, 4
            Від
                    
                2160.00
                
                    $
                
                /м2
            
            
            
        Схожі офіси
         
                    