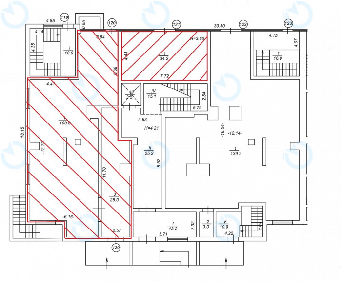
Офіс Продаж офісу 142 м.кв 1 поверх ЖК "Піонерський Квартал" ІІ
            Від
        
        28000
        грн
         / м²
    
                        
                            Статус - 
                            
                                Зайнятий
                            
                        
                    Характеристики
                        - Тип угоди: Продаж
 - Розміщення: ЖК "Піонерський Квартал" ІІ
 - Клас: Нежитлове
 - Адреса: м. Вишневе, вул. Молодіжна, 32
 - Район: Святошинський
 - Метро: Іподром
 - Площа, м2: 142 S
 - поверх: 1
 - планування: openspace
 - стан: shell&core
 
- Додатково: Окремий вхід; Перший поверх; Без ремонту
 
                            Поділитися:
                            
                        
                    Інформація про Бізнес-центр
        Натисніть для відображення карти
                
            
            
            
                ЖК "Піонерський Квартал" ІІ
            
            
    
                Загальна площа, м2: 10000
            
            - Район: Святошинський
 - адреса: м. Вишневе, вул. Молодіжна, 32
 
            Немає вільних площ
    
            
        Схожі офіси