Офис Аренда офиса 1000 м.кв 2-19 этаж Capital Towers

От 21 $ / м²
Статус - Скоро освободится
Коммунальные -
Характеристики
  • Тип сделки: Аренда
  • Размещение: Capital Towers
  • Класс: A
  • Адрес: ул. Короленковская, 20
  • Район: Голосеевский
  • Метро: Олимпийская
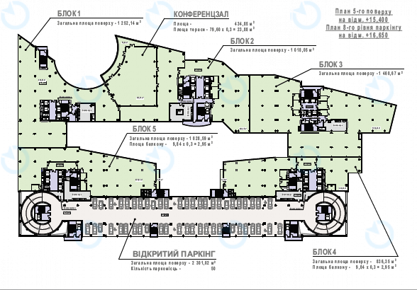
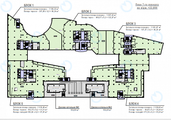
  • Площадь, м2: 1000 XL
  • этаж: 2-19
  • планирование: open space
  • состояние: частичный ремонт (фальшпол, разводки систем вентиляции, пожарных систем согласно с планированием арендатора)
  • кондиционирование: центральное
  • Додатково: На этапе строительства
Добавить в сравнение
По всем дополнительным вопросам обращайтесь по тел.
Business
Centre
Информация о Бизнес-центр
Натисніть для відображення карти
Аренда
Бизнес-центр
A
Capital Towers
Общая площадь, м2: 142000
  • Район: Голосеевский
  • адрес: ул. Короленковская, 20
От 21.00 $ 2