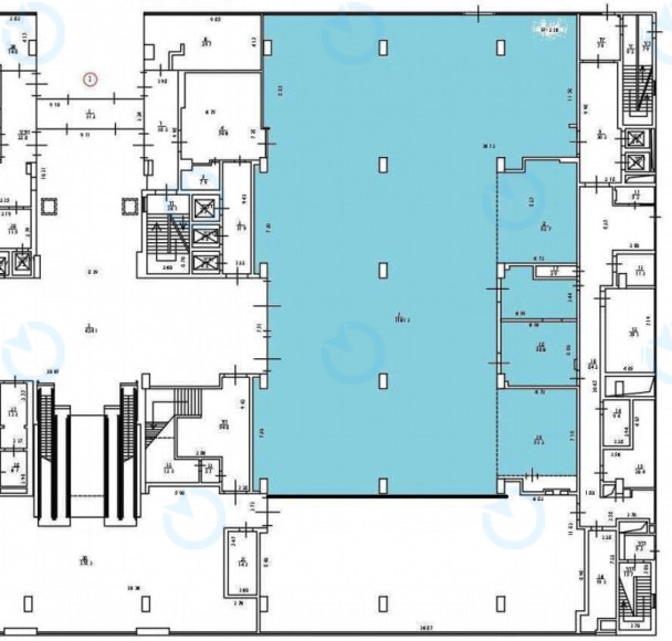
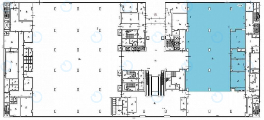
Офис Аренда офиса 1144 м.кв 1 этаж КВЦ Парковый

От 22 $ / м²
Статус - Занят
Коммунальные - по факту потребления
Характеристики
  • Тип сделки: Аренда
  • Размещение: КВЦ Парковый
  • Класс: A
  • Адрес: Парковая дорога, 16a
  • Район: Печерский
  • Метро: Арсенальная
  • Площадь, м2: 1144 XL
  • этаж: 1
  • планирование: open space
  • состояние: офисный ремонт
  • кондиционирование: центральное
Добавить в сравнение
По всем дополнительным вопросам обращайтесь по тел.
Business
Centre
Информация о Бизнес-центр
Натисніть для відображення карти
  • Топ
Аренда
Бизнес-центр
A
КВЦ Парковый
Общая площадь, м2: 20520
  • Район: Печерский
  • адрес: Парковая дорога, 16a
Нет свободных площадей