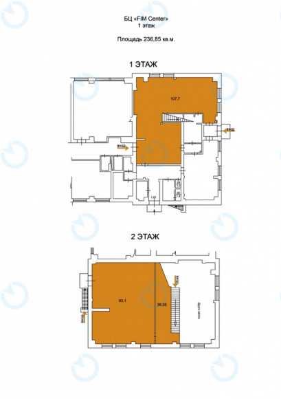
Офис Аренда офиса 237 м.кв 1-2 этаж FIM на Магнитогорской

От 256 грн / м²
Статус - Свободен
Коммунальные - по счетчикам
Характеристики
  • Тип сделки: Аренда
  • Размещение: FIM на Магнитогорской
  • Класс: C
  • Адрес: ул. Магнитогорская, 1
  • Район: Деснянский
  • Метро: Черниговская
  • Площадь, м2: 237 M
  • этаж: 1-2
  • планирование: смешанная
  • состояние: после арендатора
  • кондиционирование: центральное
Добавить в сравнение
По всем дополнительным вопросам обращайтесь по тел.
Business
Centre
Информация о Бизнес-центр
Натисніть для відображення карти
  • Владелец
  • Топ
Аренда
Бизнес-центр
C
FIM на Магнитогорской
Общая площадь, м2: 9500
  • Район: Деснянский
  • адрес: ул. Магнитогорская, 1
От 332.00 грн 2