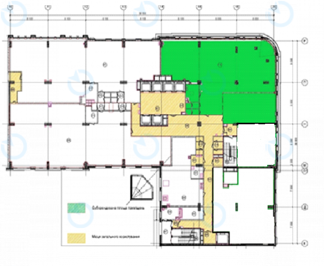
Офис Аренда офиса 335 м.кв 2 этаж Астарта

От 20 $ / м²
Статус - Свободен
Коммунальные - по факту потребления
Характеристики
  • Тип сделки: Аренда
  • Размещение: Астарта
  • Класс: A
  • Адрес: ул. Ярославская, 58
  • Район: Подольский
  • Метро: Контрактовая площадь
  • Площадь, м2: 335 L
  • этаж: 2
  • планирование: open-space
  • состояние: офисный ремонт
  • кондиционирование: центральное
  • Додатково: Свой санузел; Своя кухня
Добавить в сравнение
По всем дополнительным вопросам обращайтесь по тел.
Business
Centre
Информация о Бизнес-центр
Натисніть для відображення карти
  • Топ
Аренда
Бизнес-центр
A
Астарта
Общая площадь, м2: 35500
  • Район: Подольский
  • адрес: ул. Ярославская, 58
От 20.00 $ 2