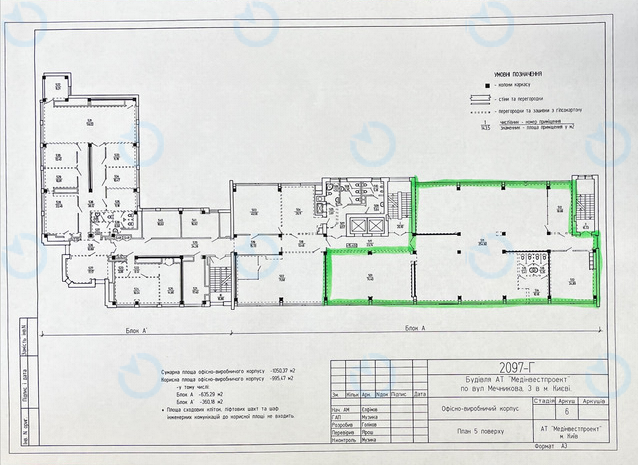
Офис Аренда офиса 405 м.кв 5 этаж Мечникова, 3

От 498 грн / м²
Статус - Свободен
Коммунальные - по факту потребления
Характеристики
  • Тип сделки: Аренда
  • Размещение: Мечникова, 3
  • Класс: C
  • Адрес: ул. Мечникова, 3
  • Район: Печерский
  • Метро: Кловская
  • Площадь, м2: 405 L
  • этаж: 5
  • планирование: open-space
  • состояние: офисный ремонт
  • кондиционирование: центральное
Добавить в сравнение
По всем дополнительным вопросам обращайтесь по тел.
Business
Centre
Информация о Бизнес-центр
Натисніть для відображення карти
Аренда
Бизнес-центр
C
Мечникова, 3
Общая площадь, м2: 6000
  • Район: Печерский
  • адрес: ул. Мечникова, 3
От 498.00 грн 2