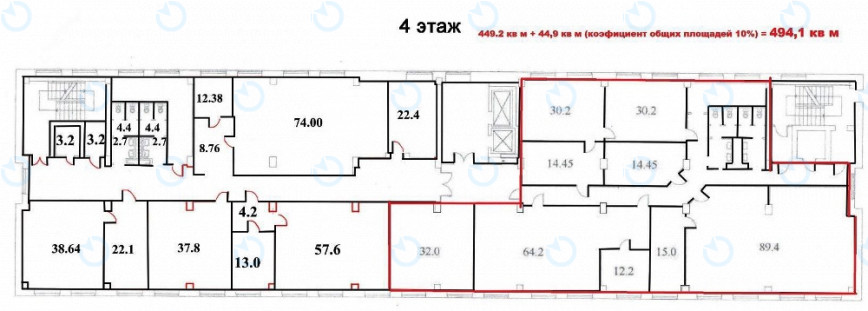
Офис Аренда офиса 494 м.кв 4 этаж Лейпцигская 15 (I очередь )

От 21 $ / м²
Статус - Занят
Коммунальные - по факту потребления
Характеристики
  • Тип сделки: Аренда
  • Размещение: Лейпцигская 15 (I очередь )
  • Класс: B
  • Адрес: ул.Лейпцигская, 15
  • Район: Печерский
  • Метро: Печерская
  • Площадь, м2: 494 L
  • этаж: 4
  • планирование: смешанная
  • состояние: офисный ремонт
  • кондиционирование: центральное
  • Додатково: Своя кухня
Добавить в сравнение
По всем дополнительным вопросам обращайтесь по тел.
Business
Centre
Информация о Бизнес-центр
Натисніть для відображення карти
  • Топ
Аренда
Бизнес-центр
B
Лейпцигская 15 (I очередь )
Общая площадь, м2: 5640
  • Район: Печерский
  • адрес: ул.Лейпцигская, 15
От 10.00 $ 2