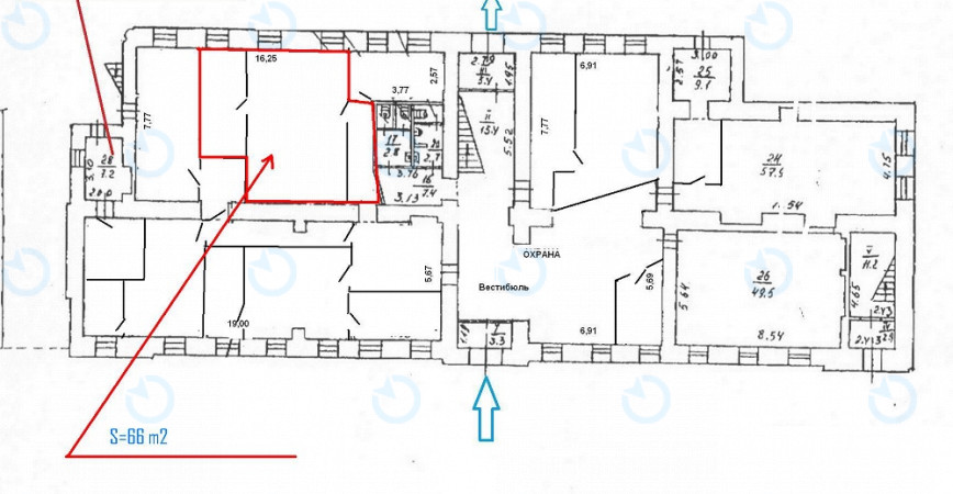
Офис Аренда офиса 66 м.кв 1 этаж Жилянская 146

От 10 $ / м²
Статус - Занят
Коммунальные - по факту потребления
Характеристики
  • Тип сделки: Аренда
  • Размещение: Жилянская 146
  • Класс: C
  • Адрес: ул. Жилянская, 146
  • Район: Шевченковский
  • Метро: Вокзальная
  • Площадь, м2: 66 S
  • этаж: 1
  • планирование: 2 кабинета
  • состояние: офисный ремонт
  • кондиционирование: центральное
Добавить в сравнение
По всем дополнительным вопросам обращайтесь по тел.
Business
Centre
Информация о Бизнес-центр
Натисніть для відображення карти
Аренда
Бизнес-центр
C
Жилянская 146
Общая площадь, м2: 3000
  • Район: Шевченковский
  • адрес: ул. Жилянская, 146
От 2.50 $ 2