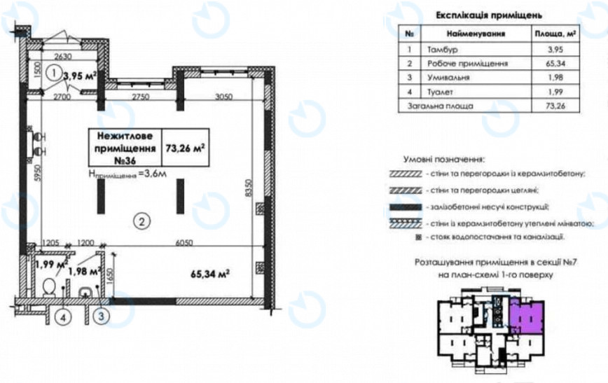
Офис Аренда офиса 74 м.кв 1 этаж Каховская, 60

От 14 $ / м²
Статус - Свободен
Коммунальные - по факту потребления
Характеристики
  • Тип сделки: Аренда
  • Размещение: Каховская, 60
  • Класс: Нежилое
  • Адрес: ул. Каховская, 60
  • Район: Деснянский
  • Метро: Левобережная
  • Площадь, м2: 74 S
  • этаж: 1
  • планирование: open space
  • состояние: под ремонт
Добавить в сравнение
По всем дополнительным вопросам обращайтесь по тел.
Business
Centre
Информация о Бизнес-центр
Натисніть для відображення карти
Аренда
Помещение
Нежилое
Каховская, 60
Общая площадь, м2: 74
  • Район: Деснянский
  • адрес: ул. Каховская, 60
От 13.50 $ 2