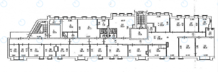
Офис Продажа офиса 534 м.кв 5 этаж Пирогова 4/26

От 1900 $ / м²
Статус - Свободен
Характеристики
  • Тип сделки: Продажа
  • Размещение: Пирогова 4/26
  • Класс: Нежилое
  • Адрес: ул. Пирогова 4/26
  • Район: Шевченковский
  • Метро: Университет
  • Площадь, м2: 534 L
  • этаж: 5
  • планирование: кабинетная
  • состояние: офисный ремонт
  • кондиционирование: центральное
Добавить в сравнение
По всем дополнительным вопросам обращайтесь по тел.
Business
Centre
Информация о Бизнес-центр
Натисніть для відображення карти
Аренда и продажа
Помещение
Нежилое
Пирогова 4/26
Общая площадь, м2: 2700
  • Район: Шевченковский
  • адрес: ул. Пирогова 4/26
От 18 $2