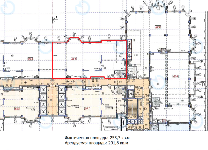
Офіс Оренда офісу 291 м.кв 6 поверх Summit (Cамміт)

Від 20 $ / м²
Статус - Зайнятий
Комунальні -
Характеристики
  • Тип угоди: Оренда
  • Розміщення: Summit (Cамміт)
  • Клас: A
  • Адреса: вул. Грушевського, 9Б
  • Район: Печерський
  • Метро: Арсенальна
  • Площа, м2: 291 M
  • поверх: 6
  • планування: open space
  • стан: shell&core
  • кондиціювання: центральне
Додати в порівняння
З усіма додатковими питаннями звертайтеся за тел.
Business
Centre
Інформація про Бізнес-центр
Натисніть для відображення карти
Оренда
Бізнес-центр
A
Summit (Cамміт)
Загальна площа, м2: 30000
  • Район: Печерський
  • адреса: вул. Грушевського, 9Б
Немає вільних площ