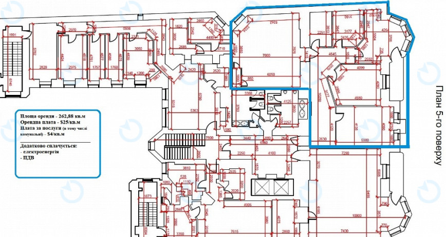
Офіс Оренда офісу 262 м.кв 5 поверх Європа на Музейному

Від 18 $ / м²
Статус - Зайнятий
Комунальні - по факту використання
Характеристики
  • Тип угоди: Оренда
  • Розміщення: Європа на Музейному
  • Клас: B
  • Адреса: Музейний провулок, 4
  • Район: Шевченківський
  • Метро: Майдан Незалежності
  • Площа, м2: 262 M
  • поверх: 5
  • планування: кабінетне
  • стан: офісний ремонт
  • кондиціювання: спліт-система
Додати в порівняння
З усіма додатковими питаннями звертайтеся за тел.
Business
Centre
Інформація про Бізнес-центр
Натисніть для відображення карти
Оренда
Бізнес-центр
B
Європа на Музейному
Загальна площа, м2: 6000
  • Район: Шевченківський
  • адреса: Музейний провулок, 4
Від 20.00 $ 2