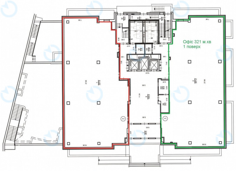
Офіс Оренда офісу 321 м.кв 1 поверх ІРВА

Від 10 $ / м²
Статус - Вільний
Комунальні - по факту використання
Характеристики
  • Тип угоди: Оренда
  • Розміщення: ІРВА
  • Клас: B+
  • Адреса: вул. Радищева, 10/14
  • Район: Солом'янський
  • Метро: Берестейська
  • Площа, м2: 321 L
  • поверх: 1
  • планування: open space
  • стан: без ремонту
  • кондиціювання: центральне
Додати в порівняння
З усіма додатковими питаннями звертайтеся за тел.
Business
Centre
Інформація про Бізнес-центр
Натисніть для відображення карти
Оренда
Бізнес-центр
B+
ІРВА
Загальна площа, м2: 26000
  • Район: Солом'янський
  • адреса: вул. Радищева, 10/14
Від 10.00 $ 2